Skip to main content

Stadthouse Immobilien | ☎ 04102 891 025 -0

Ihr Immobilienmakler für Immobilien in Großhansdorf für die Metropolregion Hamburg und Lübeck >> Übersicht

Hamburg - Winterhude, 2 Zimmer Wohnung im Mühlenkamp

Stellplatz - Balkon - Fahrstuhl - Bootsanleger

LAGEBESCHREIBUNG:

In einem der begehrtesten Stadtteile der Hansestadt Hamburg bieten wir im Alleinauftrag eine attraktive, zurzeit vermietete Eigentumswohnung zum Kauf an. Der Hamburger Stadtteil Winterhude zählt zu den stark nachgefragten Wohnlagen der Hansestadt. Hier zwischen Stadtpark und Außenalster dreht sich in dem wohlhabenden Stadtteil alles ums Wasser. Prunkvolle Villen, Jugendstilmehrfamilienhäuser, Grünflächen und die Alster-Kanäle, die durch den Stadtteil fließen, prägen das lebens- und liebenswerte Viertel. Für den individuellen und abwechslungsreichen Einkauf bieten sich die Gertigstraße, der Winterhuder Marktplatz und selbstverständlich der Mühlenkamp mit zahlreichen Boutiquen, Einrichtungs- und Feinkostläden an. Der Stadtteil ist Bühne und der schicke Mühlenkamp ist das Zentrum der von gediegenen Restaurants, zahlreiche Cafés, Kneipen und Bars gesäumt ist. Banken, Ärzte und Apotheken, ein Öko-Wochenmarkt am Goldbekufer, Kindergärten und Schulen befinden sich in der direkten Umgebung des Mühlenkamps. Einem auch gehobenen Anspruch gerechtes Sportangebot befindet sich ebenfalls in der direkten Umgebung, im Stadtpark sowie an der Außenalster. Ein vitaler Stadtteil mit Open-Air-Konzerten im Stadtpark, dem Planetarium im Art-Deco-Stil sowie Kultur im Winterhuder Fährhaus und der Kulturfabrik Kampnagel. Die Hamburger Innenstadt ist mit dem ÖPNV in ca. 15 Fahrminuten bequem zu erreichen. Alternativ wählen Sie den Alsterdampfer von der Anlegestelle am Langen Zug, der nur rd. 100 m von der Wohnung entfernt ist und Sie direkt zum Jungfernstieg bringt.

OBJEKTBESCHREIBUNG:

In einer geschlossenen Bebauung wurde im Jahr 1984/5, das mit zwei Eingängen erstellte Gebäude, im Mühlenkamp 9-11 errichtet. Das Gebäude mit 25 Wohn- und 2 Gewerbeeinheiten verteilt sich auf vier Vollgeschosse, ein ausgebautes Dachgeschoss und das Erdgeschoss mit Tiefgarage. Mit einer roten Klinkerfassade auf der Straßenseite, Balkonen auf den Gartenseiten sowie einer Tiefgarage, präsentiert sich die Wohnanlage in einem sehr guten Zustand. Zwei Aufzüge, die kurzfristig saniert werden, stehen zur Verfügung. Die Kosten für die Modernisierung werden aus den Rücklagen gezahlt. Eine Sonderumlage ist derzeit nicht geplant. Das Grundstück, gartenseitig nach Süd-West ausgerichtet, grenzt an den Mühlenkampkanal. Hier befindet sich ein privater Anleger für die Hausgemeinschaft, von dem Sie mit dem Kajak oder Kanu direkt in die Außenalster gelangen können.

LAGEBESCHREIBUNG:

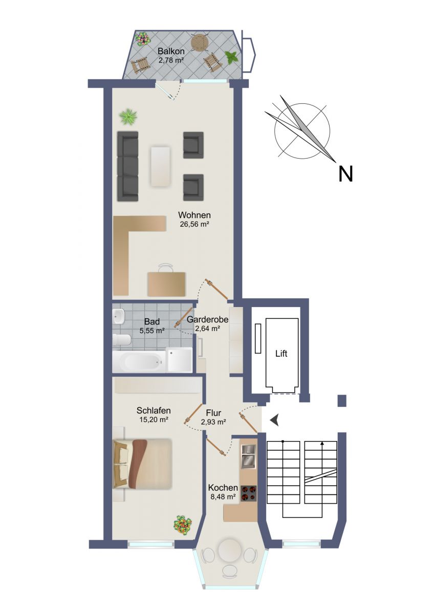
Die angebotene Wohnung befindet sich im 2. Obergeschoss des Hauses, ist derzeit vermietet und befindet sich in einem ungekündigten Mietverhältnis. Die Wohnfläche von ca. 65 m² verteilt sich auf das zum Garten ausgerichtete Wohnzimmer von rd. 27m², ein Schlafzimmer mit ca. 15 m², ein weiß gefliestes Badezimmer mit Wannenbad, eine Garderobe, Flur und eine Küche mit Möbeleinbauten sowie üblichen Elektrogeräten. Ein sonniger Balkon zur Gartenseite lädt zum Verweilen ein. Ein Bodenraum von ca. 5 m² Fläche gehört ebenso wie ein Tiefgaragenstellplatz zur Wohnung. Die Aufteilung der Wohnung entnehmen Sie bitte der Grundriss-Skizze.

LAGE, LAGE, LAGE!

   

Baujahr: 1985, Tiefgaragen-Stellplatz   Energieverbrauchsausweis 
Wohnfläche 65 m², Zimmeranzahl: 6  

Endenergiebedarf 81 kWh/(m²a), Energieeffizienzklasse C

Energieträger: Fernwärme, Bj. gem. Energieausweis 1984, gültig bis 16.01.2029

Kaufpreis       Wohnung €€€.000€, Kaufpreis Stellplatz €€.000€

zuzüglich Käufer-Courtage in Höhe von 3,57% inkl.MwSt.

   

  

Gartenseite mit Balkonen

Eigener Bootsanleger

Grundriss